

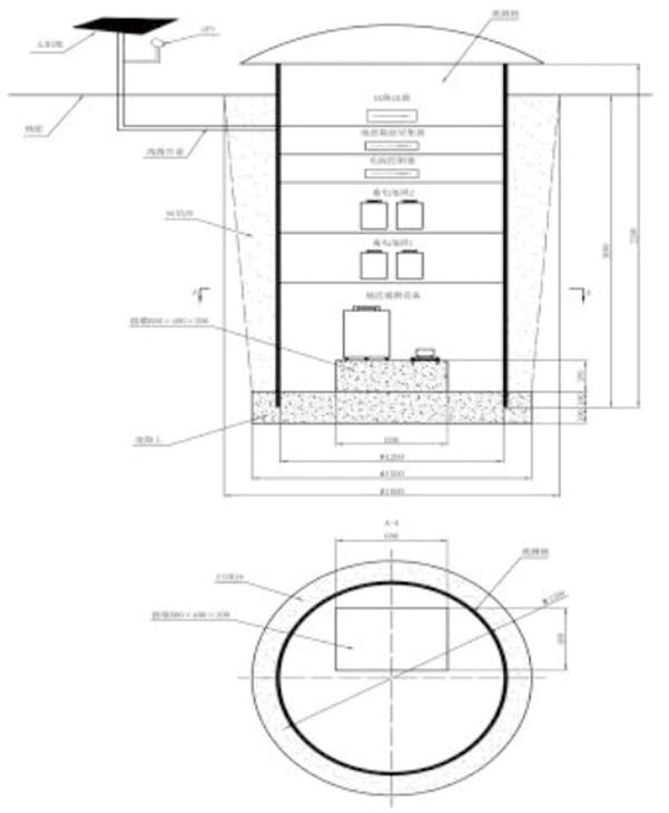
隨著寬頻帶流動地震觀測技術的發展,下沉式觀測已經被證明可以有效降低溫度對寬頻帶地震計低頻噪聲的影響;同時經試驗及國外相關項目經驗,淺井式觀測可以更好的降低溫度影響;因此台陣觀測點擬大部分采用統一施工的下沉式觀測方式(300個),並且試點部分淺井式觀測(42個)。
1、增強型複合材料製作,保證密封效果和機械強度,桶體厚度8-10毫米,彎曲強度大於100MPa,拉伸強度大於100MPa,不變形,耐圍壓。
2、直徑1.2米,高2.2米;桶體和蓋子的外觀效果優良;
3、井蓋采用穹頂設計,需要耐受1000kg以上的垂直靜壓力;井筒側壁需在2m深的土或沙圍壓下不變形;
4、井壁板預留走線孔和擱板安裝架,有四個隔板,擱板要能夠承受最少100kg以上的垂直靜壓力。桶體內有隔板支撐位和支撐架;內部結構可根據甲方實際要求改變;
5、蓋子有密封圈槽,保證密封圈的密封效果;
6、桶口下方和擱板之上的位置需要有保溫層(厚泡沫板)厚度大於15cm;
7、桶蓋需要具備鎖閉功能,必須使用專用工具或鎖具打開,並提供響應數量的專門工具;
  
|